Cedarville Gardens, Streatham, Lambeth, London

3 bedroom Property for sale

£725,000

  • 3 bedroom
  • 1 bathroom
  • 2 reception

Key Features

  • End of terrace house
  • Three double bedrooms
  • Off street parking and garage
  • Large south east facing garden
  • Two reception rooms and conservatory
  • Potential to extend to the rear and loft (STPP)
  • Close to Streatham Common and the Rookery Gardens
  • Within catchment of Outstanding schools

Description

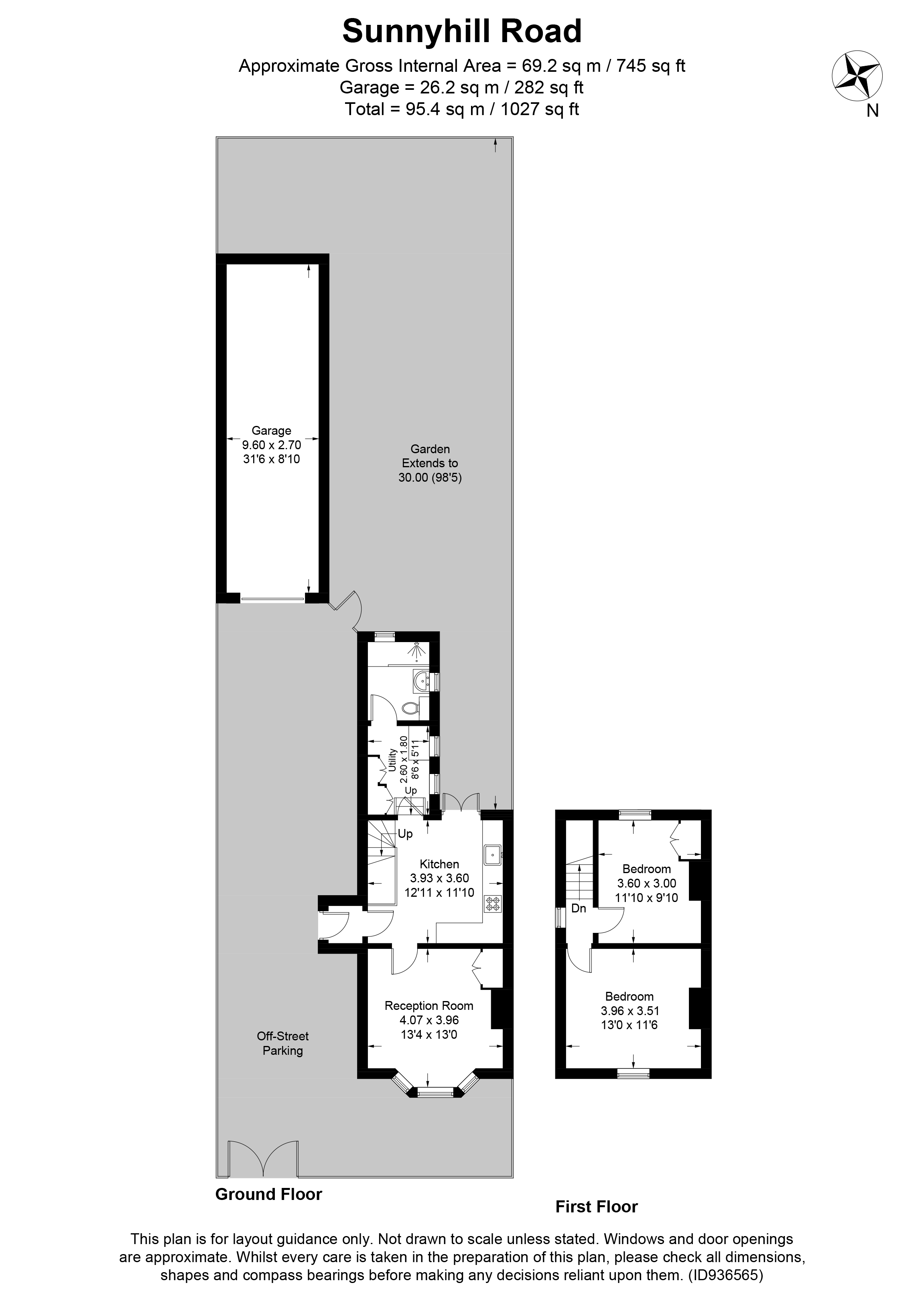
This well proportioned end of terrace home offers generous living space throughout, comprising two large reception rooms, a separate kitchen, a conservatory, and a garage on the ground floor. Upstairs, the property features three double bedrooms and a four piece family bathroom. The property further benefits from off street parking and a large south east facing garden, perfect for outdoor dining and entertaining. There is also excellent potential to extend into the loft and to the rear (STPP). Ideally located within walking distance of Streatham Common and just moments from the Rookery Gardens, the property enjoys easy access to green open spaces. Streatham High Road is also close by, offering a wide range of local amenities including Sainsbury’s, Tesco Extra, and M&S Foodhall, along with cafés, restaurants, and everyday conveniences. Streatham Common and Streatham stations are approximately a 20 minute walk away, providing regular services into central London. The property is also well positioned for families, falling within the catchment area of several Outstanding rated schools, including St Andrew’s Catholic Primary School and Bishop Thomas Grant Catholic Secondary School.

Tenure: Freehold

Council Tax Band: E


Location


Floorplan

Floorplan

EPC

EPC for Streatham, Lambeth, London

Calculate Your Stamp Duty
£
Results
Stamp Duty To Pay:
Effective Rate:
Tax Band % Taxable Sum Tax

£ 0
£ 0

Your estimated gross rental yield would be:

0.00%

Brooks Independent Estate Agents

76 Streatham High Road, Streatham, London, SW16 1BS

Similar Properties

London
For Sale

Kempshott Road, London

2 Bed Property For Sale
£335,000
London
For Sale

Norfolk House Road, London

2 Bed Flat For Sale
£400,000
London
For Sale

Drewstead Road, London

1 Bed Ground floor flat For Sale
£350,000